ASPEN GROVE LOFTS

Denver, Colorado

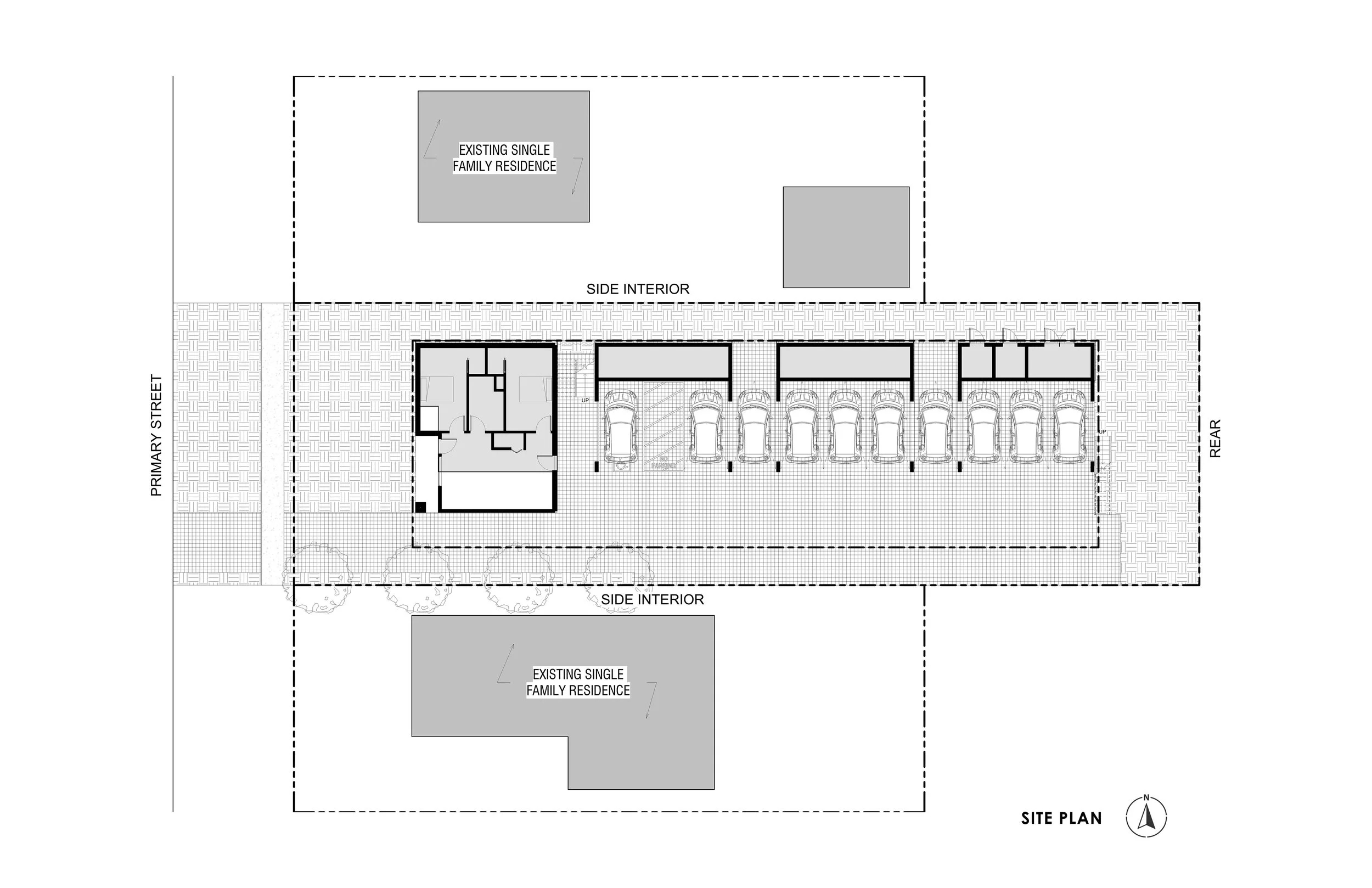
Aspen Grove Lofts is a 15 unit multi-family development in the West Colfax neighborhood of Denver, Colorado. The site is located one block West of Federal Blvd, and within walking distance to Mile High stadium.

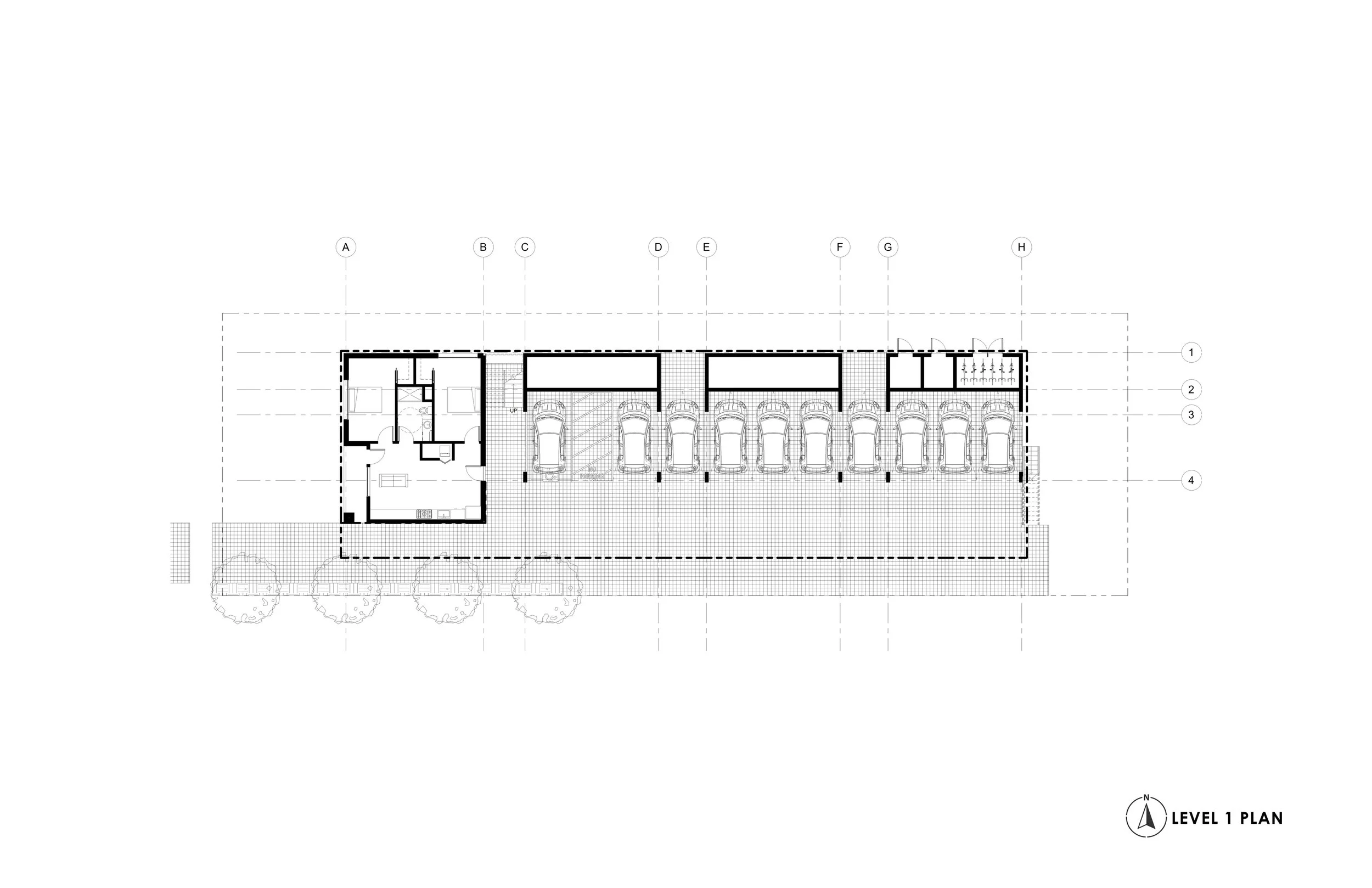
The project consists of 1 ground floor unit with parking located in the rear. Parking is covered but not enclosed. There are a total of 14 units located on the second and third floors. The units are a mix of studios, 1-bedroom, and 2-bedroom lofts.

Aspen Grove Lofts got its name from the grove of Aspen trees located between the private balconies. The intent is to provide balcony space in the trees.